欢迎光临百盛居官方网站!
电话:020-8663-3999
服务热线:400-0866-878
首页
公司简介
联系我们
套餐
经典案例
北欧
简欧
新中式
美式
现代简约
田园
欧式
美式乡村
中式
地中海
其他
设计团队
服务保障
专利工艺一
专利工艺二
装修课堂
装修攻略
设计知识
装修问答
装修风水
当前位置:
首页
>
经典案例
>
现代简约
>
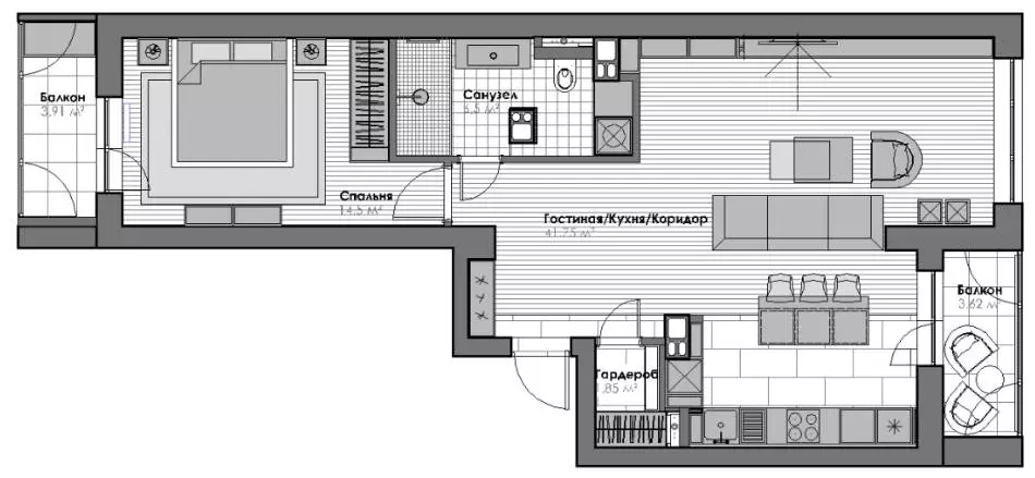
现代简约风格案例4
▏联系我们
广州市百盛居装饰工程有限公司
热线:400-0866-878
电话:020-8663-3999
手机:
QQ:
邮箱:
地址:广州市白云区黄石东路544号江夏装饰城二楼
在线申请免费装修报价
装修面积:
联系电话:
姓名: